Skip to main content
Book your assessment

Find a local dealer

With Solahart, you get the best of both worlds: unbeatable service from your local authorised dealer and the unrivalled support of Australia’s solar experts for over 70 years.

Toggle postcode results dropdown
 

Cheaper Home Batteries Program

Cheaper Home Batteries Program

The Cheaper Home Batteries Program offers eligible Australian households and small businesses up to 30% off the cost of installing small-scale solar battery systems, helping store renewable energy and reduce electricity bills. Available nationwide from July 2025.

Home Battery Rebate: What You Need to Know – and How Solahart Can Help

Save on a Home Battery with the New Government Rebate

From 1 July 2025, eligible Australians can access a federal rebate of up to $3,720 on a 10kWh battery system, making it more affordable than ever to store your solar energy and reduce your power bills.

Solahart is here to help you take full advantage of the Cheaper Home Batteries Program, with expert advice, premium battery solutions, and trusted installation.

How Much Is the Solar Battery Rebate?

The Cheaper Home Batteries Program offers up to $372 per usable kilowatt-hour (kWh) of battery capacity (before fees). After fees, the average customer saves approximately $330 per kWh — which could reduce the upfront cost of a 10kWh home battery by around $3,300.

Who Is Eligible for the Cheaper Home Batteries Program?

You may qualify for the rebate if your battery system meets the following criteria:

  • Between 5kWh and 100kWh in nominal capacity (Only the first 50kWh are rebate-eligible)
  • Installed by a CEC-accredited battery installer
  • Uses a Clean Energy Council–approved solar battery
  • Capable of connecting to a Virtual Power Plant (VPP) (participation not required)
  • Installed on a residential home, small business, or community building
  • Connected to a new or existing solar PV system
  • Installed for permanent use (not portable or resold)
  • Not an electric vehicle or portable energy storage device

You may also upgrade or expand an existing battery system if it hasn’t previously received the rebate and the added capacity is at least 5kWh.

For full eligibility criteria, read Intended eligibility for the Cheaper Home Batteries Program from the Department of Climate Change, Energy, the Environment and Water. 

What Can You Do Now?

  1. Book a Free Solar Assessment

    If you don’t yet have solar, we’ll guide you through installation — batteries are only eligible when connected to a solar PV system.

  2. Explore Battery Options

    Solahart offers a range of advanced battery systems, including options that are fully VPP-ready, helping you unlock even greater savings and energy independence.

  3. Review Your Quote

    Our local Solahart team will confirm your eligibility and help you maximise your rebate.

Why Home Batteries Are a Smart Move

As more Australians embrace solar energy, home batteries are quickly becoming the next step towards smarter, more sustainable living. Here’s why installing a battery could be one of the best energy decisions you make:

  • Maximise your solar investment
  • Store your excess solar energy and use it day or night
  • Reduce your energy bills and reliance on the grid
  • Enjoy greater energy independence and backup during blackouts (blackout functionality may be required at an additional cost)
  • Take part in a smarter, more sustainable energy future

Why Choose Solahart

As one of Australia’s most trusted names in solar, Solahart has been helping households take control of their energy bills for over 70 years. When it comes to battery storage – especially with new government rebates announced creating unprecedented demand – choosing the right partner is more important than ever. Here’s why thousands of Australians choose Solahart:

  • Experience you can trust
  • Premium battery solutions
  • We are not just solar; we are part of a Smart Energy Ecosystem
  • Warranties & Support you can rely on
  • Tailored Interest-free finance available for eligible customers
Disclaimer

*Australian Government incentive: From 1 July 2025, incentives for batteries are available to eligible households under the Small-scale Renewable Energy Scheme (SRES). For further details, including full eligibility criteria, see https://cer.gov.au/batteriesWestern Australia: From 1 July 2025, battery rebates are available under the WA Residential Battery Scheme to eligible Synergy and Horizon Power customers in Western Australia. Households are required to participate in a Virtual Power Plant (VPP) in order to receive this rebate. For further details, including full eligibility criteria, see www.wa.gov.au/organisation/energy-policy-wa/wa-residential-battery-scheme. The WA Scheme is complimentary to the Federal Government’s battery rebate under the Small-scale Renewable Energy Scheme. New South Wales: The amount shown above is not a deduction from this Quotation. Rather, it is an estimate of an incentive that eligible NSW homeowners may be able to receive under the NSW Government’s Peak Demand Reduction Scheme (PDRS). The BESS2 incentive requires connection of an eligible home battery to a Virtual Power Plant (VPP). Interested homeowners should contact their desired VPP operator to receive an accurate estimate and to access the incentive. For further details, including full eligibility criteria, see www.energy.nsw.gov.au/nsw-plans-and-progress/regulation-and-policy/energy-security-safeguard/residential-solar-battery-demand-response-eligibility.

Get smart, switch to Solahart today

Solahart Atmos Frost 270QDR

Submitted by olga@blissmedi… on
Heat Pump Water Heater

The Solahart Atmos Frost 270QDR is a robust, frost-tolerant heat pump designed for year-round hot water in diverse Australian climates — now with Home Energy Management System (HEMS) compatibility.

5
Title
Family size
270
Title
Capacity
Short measurement unit
L
7
Title
Warranty
Short measurement unit
*yr
74%
Title
Water Heating Energy Savings
Short measurement unit
#

Solahart Atmos® Frost 270QDR: Key Attributes

Why Atmos Eco is a smart choice

Built for Australia's most demanding conditions, Solahart Atmos® Frost 270QDR Heat Pump provides a reliable, energy-efficient alternative to traditional electric systems. With its frost-tolerant design, 270-litre capacity, and high-efficiency performance (COP of 4.4), it’s ideal for cold climates, harsh water areas, and tropical locations.

Now optionally compatible with Solahart HEMS (Home Energy Management System), the 270QDR can intelligently coordinate with your solar power system. This integration helps you maximise self-consumption of solar energy by scheduling water heating during off-peak or surplus solar periods, giving you more control over your energy use and costs.

High COP of 4.4

Coefficient of Performance (COP) of 4.4** Improves energy efficiency and lowers your reliance on grid electricity.

Heavy Duty Top Cover

The ASA^ top cover withstands harsh weather conditions.

HEMS Compatible (Optional)

Optimise energy use by linking your heat pump with Solahart’s smart energy platform.

Enamel-Lined Water Tank

Long-lasting protection against corrosion and leakage.

Side Fan for Airflow & Protection

Ensures ventilation and shields internal parts from rain.

Advanced Microchannel Technology

Provides a larger contact area for rapid and consistent heating.

Smart LED Touchscreen Controller

Intuitive user interface makes operation easy and informative.

All-Climate Performance

Durable ASA Top Cover withstands Australia’s extreme weather for long-term reliability, making it suitable for installation virtually anywhere in Australia.

How you could benefit from a HEMS^ compatible Solahart Heat Pump

  • *Warranty Details
    • 7 years cylinder supply
    • 3 years cylinder labour
    • 3 years sealed system supply and labour
    • 2 year parts supply and labour

    *The warranty periods above apply to a single-family domestic dwelling only. See the Solahart warranty set out in the Owner’s Guide and Installation Instructions. For more details call Solahart Australia 1300 769 475.

    Without limiting the warranty periods shown above, a 5-year whole-of-product warranty applies to the installation of a Solahart Frost 270QDR Heat Pump where:
    a) A hot water rebate has been received under Solar Victoria’s Solar Homes Program for a heat pump water heater installed from 1 July 2023, and / or
    b) Victorian Energy Efficiency Certificates (VEECs) have been created for a heat pump water heater installed from 1 February 2025.
    For further details, call 1300 769 475. Proof of receipt of the rebate and / or proof of VEECs being created, i.e. installation quote showing number of VEECs and dollar value, plus proof of purchase (as applicable) must be produced at the time of the service call.

    All other applications have a 3/1/1 warranty; 3-year cylinder supply, 1-year cylinder labour, 1-year parts, including labour. 

    ** Testing condition: 19°C/15°C (Dry bulb/Wet bulb) ambient air temperature, relative humidity of 62% and heating water from 8°C to 60°C.

    ^ Acrylonitrile Styrene Acrylate (ASA) is an amorphous thermoplastic with improved weather resistance.

270
Title
Storage Capacity
Specification group
Measurement unit
L
195
Title
Boost Capacity
Specification group
Measurement unit
L
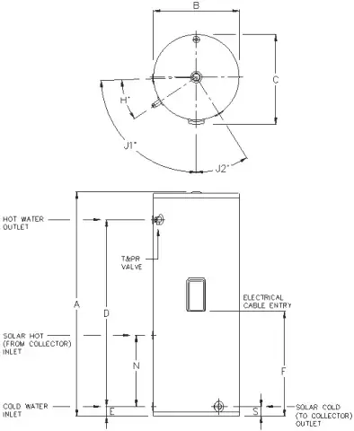
1825 x 725 x 690
Title
Dimensions H x W x D
Specification group
Measurement unit
mm
145
Title
Weight - Empty (cartoned)
Specification group
Measurement unit
kg
405
Title
Weight - Full
Specification group
Measurement unit
kg
60
Title
Temperature Setting
Specification group
Measurement unit
°C
3600
Title
Maximum Rated Power Input @ 240 V
Specification group
Measurement unit
Watts
985
Title
Rated Heat Pump Power Input
Specification group
Measurement unit
Watts
R513A
Title
Refrigerant
Specification group
2.4
Title
Element Size
Specification group
Measurement unit
kW
47
Title
Noise Rating @ 1 m
Specification group
Measurement unit
dB(A)
IP24
Title
IP Rating
Specification group
4.4*
Title
Average Coefficient of Performance (COP) @ 19°C Ambient air temperature & 8°C to 60°C water temperature
Specification group
4.0*
Title
Average Heat Pump Heating Capacity @ 19°C Ambient air temperature & 8°C to 60°C water temperature
Specification group
Measurement unit
kW
Rp 3/4
Title
Water Inlet/Outlet Connections
1000
Title
Temperature Pressure Relief Valve Setting
Measurement unit
kPa
850
Title
ECV Setting (not supplied)
Measurement unit
kPa
680
Title
With ECV
Specification group
Measurement unit
kPa
800
Title
Without ECV
Specification group
Measurement unit
kPa
6
Title
Family Size
Specification group
7
Title
Solahart Warranty
Specification group
Measurement unit
years
74%
Title
Water Heating Energy Savings
Specification group
Measurement unit
#

How Heat Pump Water Heaters Work

The efficient heat pump technology extracts energy from the surrounding air. Ambient warmth is used to convert the refrigerant within the sealed system into a gas. The gas is then compressed to generate even more heat which then heats the water in the tank. What’s more this process can work day or night, in sunshine and rain, all year round.

When hot water is drawn off and cold water enters the tank, the thermostat activates the fan and the compressor. The operation of the compressor causes a pressure difference within the sealed refrigeration system. This pressure difference causes the refrigerant to move around the sealed system. The refrigerant enters the evaporator as a liquid. As the refrigerant absorbs heat from the atmosphere it changes state, at low pressure, from a sub cooled liquid to a super-heated vapour or gas (evaporates). The vapour then enters the compressor and obtains more heat, known as heat of compression, and passes into the heat exchanger as a super-heated vapour at high pressure.

As the refrigerant passes through the micro-channel heat exchanger wrapped around the storage cylinder, it gives off heat which is absorbed by the water inside the cylinder. As the refrigerant gives off heat it cools and changes state back into a liquid (condenses). The refrigerant then enters the evaporator again and the cycle is repeated. The resulting cold air is then discharged through the air outlet louvers back to atmosphere. This process continues while ever heating is required until the water in the storage tank reaches a temperature of 60°C.  

User-Friendly Smart Control

The Solahart Atmos-Air Heat Pump comes with an inbuilt touch LCD display. It is user-friendly and boasts a range of features, operation modes and settings:

  • Clock
  • Usable hot water quantity display
  • Water temperature display
  • Dual timer function
  • Vacation Mode - conserve energy when you are on holidays
  • Manual electric heating mode - For emergency hot water requirements in the event of the heat pump developing a fault
  • Automatic de-icing Function - automatic de-icing in frost conditions
Image
596270 dimensions

* COP – The Coefficient of Performance for a heat pump is the ratio of how much useful heat it produces for water heating to the power input into the water heater. The higher the COP number, the more efficient the heat pump is. The actual COP of the product at any given time will be impacted by a number of factors, including the ambient air and cold-water inlet temperatures at the place of installation and time of day / season of operation.

An Average Coefficient of Performance (COP) of 4.4 was measured under test conditions with an ambient air temperature of 19˚C/15˚C (Dry Bulb/Wet Bulb), heating of the water from 8˚C to 60˚C during water heater operation and a power supply of 240 V~ 50 Hz. The Heat Pump average heating capacity in Watts (and converted to kilowatts – kW) and its water heating capacity in Litres / hour were calculated from the results of this test.

Average Heat Pump Heating Capacity kW – This is how much heating power is put into the water during the heating cycle by the heat pump. It is expressed as an average due to the changes in heating power from the refrigeration cycle as the water is being heated and its temperature increases during the heating cycle.

* COP – The Coefficient of Performance for a heat pump is the ratio of how much useful heat it produces for water heating to the power input into the water heater. The higher the COP number, the more efficient the heat pump is. The actual COP of the product at any given time will be impacted by a number of factors, including the ambient air and cold-water inlet temperatures at the place of installation and time of day / season of operation.

An Average Coefficient of Performance (COP) of 4.4 was measured under test conditions with an ambient air temperature of 19˚C/15˚C (Dry Bulb/Wet Bulb), heating of the water from 8˚C to 60˚C during water heater operation and a power supply of 240 V~ 50 Hz. The Heat Pump average heating capacity in Watts (and converted to kilowatts – kW) and its water heating capacity in Litres / hour were calculated from the results of this test.

Average Heat Pump Heating Capacity kW – This is how much heating power is put into the water during the heating cycle by the heat pump. It is expressed as an average due to the changes in heating power from the refrigeration cycle as the water is being heated and its temperature increases during the heating cycle.

Streamline 413MCS07V

Submitted by maria@blissmed… on
Solahart 410L Solar Split System | LCS Collector for High Demand Homes

The Solahart 413MCS07V features a 410-Litre tank and three LCS collectors to deliver energy-efficient solar hot water for up to 7 people.

6-7
Title
Family size
Measurement unit
People
410
Title
Capacity
Measurement unit
Litre
Short measurement unit
L
3
Title
Collectors
5/3/2
Title
Warranty
Measurement unit
yr
Short measurement unit
Years

Streamline 413MCS07V: Key Attributes

 

The Solahart 413MCS07V is a powerful split system solar water heater built for large families or high-demand homes. It pairs a spacious 410-Litre ground-mounted tank with three high-efficiency LCS collectors, making it suitable for up to seven people.

Designed for Australia’s cooler regions, this system includes frost protection and can be safely installed up to 600 metres in elevation. Like all MDV models, it is not intended for use in areas with harsh water conditions. Backed by Solahart’s 5-year tank warranty, the 413MCS07V is a dependable, eco-friendly solution for large households.

Key Features / USPs:

  • 410L tank for large families (up to 7 people)
  • LCS solar collector for strong performance
  • Enhanced frost protection for cold regions
  • Altitude rated up to 600m
  • Reduce energy consumption by up to 70%*
  • Backed by Solahart's 5-year tank warranty
  • Not suitable for poor water conditions^
410
Title
Storage Capacity
Specification group
Measurement unit
litres
Short measurement unit
l
220
Title
Boost Capacity (Electric)
Specification group
Measurement unit
litres
Short measurement unit
l
Indoor/Outdoor
Title
Installation
Specification group
Short measurement unit
l
PN 299293
Title
Solar Controller Kit
Specification group
Short measurement unit
l
115
Title
Weight Empty
Specification group
Measurement unit
kg
Short measurement unit
kg
531
Title
Weight Full
Specification group
Measurement unit
kg
Short measurement unit
kg
1.840
Title
Height
Specification group
Measurement unit
m
0.690
Title
Width
Specification group
Measurement unit
m
Short measurement unit
m
0.730
Title
Depth
Specification group
Measurement unit
m
Cooper sheath immersion element
Title
Heating Unit Type
Specification group
240V 50hz
Title
Supply Voltage
Specification group
1.87
Title
Aperture (heating) Area
Specification group
Measurement unit
m2
1996
Title
Length
Specification group
Measurement unit
mm
1043
Title
Width
Specification group
Measurement unit
mm
82
Title
Height
Specification group
Measurement unit
mm
1.2
Title
Capacity
Specification group
Measurement unit
litres
1000 kPa
Title
Working Pressure
Specification group
36
Title
Weight Emtpy
Specification group
Measurement unit
kg
41
Title
Weight Full
Specification group
Measurement unit
kg
Blue Tinox sputtered selective
Title
Absorber Surface
Specification group
copper
Title
Absorber Material
Specification group
copper tube
Title
Riser Material
Specification group
extruded aluminium frame with 0.40mm Zincalume backing sheet
Title
Tray Material
Specification group
38mm glass wool blanket
Title
Insulation Material - Base
Specification group
3.2mm tempered low iron glass
Title
Glass
Specification group
1000 kPa
145 psi
Title
TPR Valve Setting
Specification group
850 kPa
125 psi
Title
ECV* Setting
Specification group
680 kPa
Title
Max. Supply Pressure With ECV
Specification group
800 kPa
Title
Max. Supply Pressure Without ECV
Specification group
200 kPa / 29 psi
Title
Minimum Supply Pressure
Specification group
Rp 3/4
Title
Water Connections Cold
Specification group
Rp 3/4
Title
Water Connections Hot
Specification group
DN15 compression fittings (solar hot and solar cold inlets to tank Rp 3/4)
Title
Water Connections Solar
Specification group

How Split System Solar Water Heaters Work

With open circuit split systems the water is circulated from the tank at ground level through the solar collectors by an electric pump called a 'circulator'. As the sun heats the water in the solar collectors, the increase in temperature activates the circulator. The circulator switches on whenever the water in the solar collectors is hotter than the water in the solar storage tank. The circulator moves the hotter water from the solar collectors through the solar hot pipe to the solar storage tank and the cooler water from the solar storage tank is circulated to the solar collectors via the solar cold pipe to be heated by the sun’s energy. This process continues whilst solar energy is available and the water in the solar storage tank requires heating. The circulator will deactivate when the water temperature in the solar storage tank is around 70°C to 75°C.

The Solahart 413MCS07V split solar water heater is designed to be installed as an electric boosted solar water heater with its booster heating unit connected to a power supply, however it may be installed with an in-series continuous flow or storage booster. If installed with an in-series booster, then the electric booster heating unit will not be connected to a power supply.

Solar Operation

The operation of the circulator is controlled by the combination of:

  • the hot sensor located at the outlet of the solar collectors. The hot sensor measures the water temperature at the outlet of the solar collectors.
  • the cold sensor located at the solar cold outlet at the base of the solar storage tank. The cold sensor measures the water temperature at the bottom of the solar storage tank.
  • the differential controller located in the solar control unit.

With open circuit split systems, the water is circulated from the tank at ground level through the solar collectors by an electric pump called a 'circulator'. As the sun heats the water in the solar collectors, the increase in temperature activates the circulator. The circulator switches on whenever the water in the solar collectors is hotter than the water in the solar storage tank. The circulator moves the hotter water from the solar collectors through the solar hot pipe to the solar storage tank and the cooler water from the solar storage tank is circulated to the solar collectors via the solar cold pipe to be heated by the sun’s energy.

This process continues whilst solar energy is available and the water in the solar storage tank requires heating. The circulator will deactivate when the water temperature in the solar storage tank is around 70°C to 75°C.

During normal operation if the amount of solar energy available reduces, such as when the sky becomes very cloudy or the sun becomes lower in the sky in the late afternoon, and the water no longer gains usable heat from the solar collectors, the circulator will deactivate. The water heater will then enter standby mode.

Over-Temperature Operation

The purpose of the Over-temperature operation is to reduce the amount of overheating or ‘stagnation’ of water in the solar collectors. When the water in the solar storage tank has reached 70°C to 75°C and the circulator has deactivated, the solar collectors will continue to gain heat while solar energy is still available.

If the water in the solar collectors stagnates and its temperature becomes very high, the circulator will activate for a short period to transfer this extra energy to the solar storage tank. The circulator will deactivate when the water temperature in the solar collectors decreases. This process will either repeat for a maximum of eight cycles or until the water temperature in the solar storage tank reaches around 75°C to 80°C or the hot sensor does not sense another increase in water temperature to a stagnation level after a cycle is completed, i.e. the solar energy available reduces.

Night Time Cooling Operation

The purpose of Night Time Cooling operation is to rid the solar storage tank of excess solar energy gained by Over-temperature operation during that day. The desired water temperature in the solar storage tank is to be between 60°C to 70°C.

If the solar control unit has entered Over-temperature operation during the day, then after the water temperature in the solar collectors reduces later in the day or early evening, the circulator will activate. Water from the solar storage tank will circulate through the solar collectors and excess heat in the water will radiate from the solar collectors reducing the temperature of the water. The water will circulate for a period of time and until the water temperature in the solar storage tank is around 60°C to 70°C. The water heater will then enter standby mode.

Freeze Protection Operation

The purpose of Freeze Protection operation is to prevent freezing of water in the solar collectors and solar pipe work in very cold conditions. The water in the solar collectors will cool during periods of no solar gain. In very cold conditions, such as overnight and very early in the morning before sunrise, the water temperature can approach freezing point.

If the hot sensor measures that the water temperature in the solar collectors is approaching freezing, the circulator will activate. Water from the solar storage tank, containing more energy than the water in the solar collectors, will circulate through the solar collectors keeping the water temperature above freezing point. The circulator will remain on for some minutes and until the hot sensor measures a water temperature at a safe level above freezing. When both of these conditions are met, the circulator will deactivate. The water heater will then enter standby mode.

Standby Mode

The water heater will be in Standby mode whenever conditions are not favourable for solar heating in Normal operation, and Over-temperature operation and Night Time Cooling are not required or have been completed, and conditions are not cold enough for or in-between Freeze Protection operation.

Image
410 mdv with collectors low res reduced

* The suggested price is comprised of RRP less the applicable solar incentive and excluding installation. Solar incentive value applies to 413MCS07V system in Zone 3.
^ Energy savings of up to 75% shown are based on Australian Government approved TRNSYS simulation modelling of a Solahart 413CS07V and using a large load in Zone 3 and apply when replacing an electric water heater. Any savings will vary depending upon your location, type of Solahart system installed, orientation and inclination of the solar collectors, type of water heater being replaced, hot water consumption and fuel tariff. Maximum financial savings off your hot water bill are achievable when replacing an electric water heater on continuous tariff.
† Solahart Warranty Details: 5/3/2 warranty; 5 year cylinder and collectors supply, 3 year parts, 2 year labour; applies to a single family domestic dwelling only. Without limiting these periods, a 5-year whole-of-product warranty applies where a rebate has been received under Solar Victoria’s Solar Homes Program for installations from 1st July 2023. For further details, call 131 031.
All other applications have a 3/1/1 warranty; 3 year cylinder and collector supply, 1 year parts supply, 1 year labour.

* The suggested price is comprised of RRP less the applicable solar incentive and excluding installation. Solar incentive value applies to 413MCS07V system in Zone 3.
^ Energy savings of up to 75% shown are based on Australian Government approved TRNSYS simulation modelling of a Solahart 413CS07V and using a large load in Zone 3 and apply when replacing an electric water heater. Any savings will vary depending upon your location, type of Solahart system installed, orientation and inclination of the solar collectors, type of water heater being replaced, hot water consumption and fuel tariff. Maximum financial savings off your hot water bill are achievable when replacing an electric water heater on continuous tariff.
† Solahart Warranty Details: 5/3/2 warranty; 5 year cylinder and collectors supply, 3 year parts, 2 year labour; applies to a single family domestic dwelling only. Without limiting these periods, a 5-year whole-of-product warranty applies where a rebate has been received under Solar Victoria’s Solar Homes Program for installations from 1st July 2023. For further details, call 131 031.
All other applications have a 3/1/1 warranty; 3 year cylinder and collector supply, 1 year parts supply, 1 year labour.

Streamline 322MCS07V

Submitted by maria@blissmed… on
Solahart 320L Solar Water Heater | LCS Collector

With a 320-Litre tank and LCS collectors, the Solahart 322MCS07V offers efficient solar water heating for larger families in cool zones.

4
Title
Family size
Measurement unit
People
320
Title
Capacity
Measurement unit
Litre
Short measurement unit
L
2
Title
Collectors
5/3/2
Title
Warranty
Measurement unit
yr
Short measurement unit
Years

Streamline 322MCS07V: Key Attributes

Why Streamline 322MCS07V is a smart choice

The 322MCS07V from Solahart offers large-scale hot water capacity and efficient solar performance for homes with up to six people. With a 320-Litre ground-mounted tank and an LCS collector, this system provides reliable hot water while keeping energy bills low.

It’s built to handle colder weather thanks to its built-in frost protection and can be installed in areas up to 600m above sea level. Like other MDV systems, it’s not recommended for use in areas with poor water quality. Backed by Solahart’s 5-year tank warranty, it’s a robust and energy-efficient choice.

Key Features / USPs:

  • 320L storage – ideal for families of up to 6
  • Cold climate ready with frost protection
  • High-performance LCS collector
  • Installation approved to 600m elevation
  • Energy savings of up to 70%*
  • Covered by a 5-year tank warranty
  • Not for homes with harsh water^
320
Title
Storage Capacity
Specification group
Measurement unit
litres
Short measurement unit
l
170
Title
Boost Capacity (Electric)
Specification group
Measurement unit
litres
Short measurement unit
l
Indoor/Outdoor
Title
Installation
Specification group
Short measurement unit
l
PN 299293
Title
Solar Controller Kit
Specification group
Short measurement unit
l
92
Title
Weight Empty
Specification group
Measurement unit
kg
Short measurement unit
kg
418
Title
Weight Full
Specification group
Measurement unit
kg
Short measurement unit
kg
1.640
Title
Height
Specification group
Measurement unit
m
0.640
Title
Width
Specification group
Measurement unit
m
Short measurement unit
m
0.680
Title
Depth
Specification group
Measurement unit
m
Cooper sheath immersion element
Title
Heating Unit Type
Specification group
240V 50hz
Title
Supply Voltage
Specification group
1.87
Title
Aperture (heating) Area
Specification group
Measurement unit
m2
1996
Title
Length
Specification group
Measurement unit
mm
1043
Title
Width
Specification group
Measurement unit
mm
82
Title
Height
Specification group
Measurement unit
mm
1.2
Title
Capacity
Specification group
Measurement unit
litres
1000 kPa
Title
Working Pressure
Specification group
36
Title
Weight Emtpy
Specification group
Measurement unit
kg
41
Title
Weight Full
Specification group
Measurement unit
kg
Blue Tinox sputtered selective
Title
Absorber Surface
Specification group
copper
Title
Absorber Material
Specification group
copper tube
Title
Riser Material
Specification group
extruded aluminium frame with 0.40mm Zincalume backing sheet
Title
Tray Material
Specification group
38mm glass wool blanket
Title
Insulation Material - Base
Specification group
3.2mm tempered low iron glass
Title
Glass
Specification group
1000 kPa
145 psi
Title
TPR Valve Setting
Specification group
850 kPa
125 psi
Title
ECV* Setting
Specification group
680 kPa
Title
Max. Supply Pressure With ECV
Specification group
800 kPa
Title
Max. Supply Pressure Without ECV
Specification group
200 kPa / 29 psi
Title
Minimum Supply Pressure
Specification group
Rp 3/4
Title
Water Connections Cold
Specification group
Rp 3/4
Title
Water Connections Hot
Specification group
DN15 compression fittings (solar hot and solar cold inlets to tank Rp 3/4)
Title
Water Connections Solar
Specification group

How Split System Solar Water Heaters Work

With open circuit split systems the water is circulated from the tank at ground level through the solar collectors by an electric pump called a 'circulator'. As the sun heats the water in the solar collectors, the increase in temperature activates the circulator. The circulator switches on whenever the water in the solar collectors is hotter than the water in the solar storage tank. The circulator moves the hotter water from the solar collectors through the solar hot pipe to the solar storage tank and the cooler water from the solar storage tank is circulated to the solar collectors via the solar cold pipe to be heated by the sun’s energy. This process continues whilst solar energy is available and the water in the solar storage tank requires heating. The circulator will deactivate when the water temperature in the solar storage tank is around 70°C to 75°C.

The Solahart 322MCS07V split solar water heater is designed to be installed as an electric boosted solar water heater with its booster heating unit connected to a power supply, however it may be installed with an in-series continuous flow or storage booster. If installed with an in-series booster, then the electric booster heating unit will not be connected to a power supply.

Solar Operation

The operation of the circulator is controlled by the combination of:

  • the hot sensor located at the outlet of the solar collectors. The hot sensor measures the water temperature at the outlet of the solar collectors.
  • the cold sensor located at the solar cold outlet at the base of the solar storage tank. The cold sensor measures the water temperature at the bottom of the solar storage tank.
  • the differential controller located in the solar control unit.

With open circuit split systems, the water is circulated from the tank at ground level through the solar collectors by an electric pump called a 'circulator'. As the sun heats the water in the solar collectors, the increase in temperature activates the circulator. The circulator switches on whenever the water in the solar collectors is hotter than the water in the solar storage tank. The circulator moves the hotter water from the solar collectors through the solar hot pipe to the solar storage tank and the cooler water from the solar storage tank is circulated to the solar collectors via the solar cold pipe to be heated by the sun’s energy.

This process continues whilst solar energy is available and the water in the solar storage tank requires heating. The circulator will deactivate when the water temperature in the solar storage tank is around 70°C to 75°C.

During normal operation if the amount of solar energy available reduces, such as when the sky becomes very cloudy or the sun becomes lower in the sky in the late afternoon, and the water no longer gains usable heat from the solar collectors, the circulator will deactivate. The water heater will then enter standby mode.

Over-Temperature Operation

The purpose of the Over-temperature operation is to reduce the amount of overheating or ‘stagnation’ of water in the solar collectors. When the water in the solar storage tank has reached 70°C to 75°C and the circulator has deactivated, the solar collectors will continue to gain heat while solar energy is still available.

If the water in the solar collectors stagnates and its temperature becomes very high, the circulator will activate for a short period to transfer this extra energy to the solar storage tank. The circulator will deactivate when the water temperature in the solar collectors decreases. This process will either repeat for a maximum of eight cycles or until the water temperature in the solar storage tank reaches around 75°C to 80°C or the hot sensor does not sense another increase in water temperature to a stagnation level after a cycle is completed, i.e. the solar energy available reduces.

Night Time Cooling Operation

The purpose of Night Time Cooling operation is to rid the solar storage tank of excess solar energy gained by Over-temperature operation during that day. The desired water temperature in the solar storage tank is to be between 60°C to 70°C.

If the solar control unit has entered Over-temperature operation during the day, then after the water temperature in the solar collectors reduces later in the day or early evening, the circulator will activate. Water from the solar storage tank will circulate through the solar collectors and excess heat in the water will radiate from the solar collectors reducing the temperature of the water. The water will circulate for a period of time and until the water temperature in the solar storage tank is around 60°C to 70°C. The water heater will then enter standby mode.

Freeze Protection Operation

The purpose of Freeze Protection operation is to prevent freezing of water in the solar collectors and solar pipe work in very cold conditions. The water in the solar collectors will cool during periods of no solar gain. In very cold conditions, such as overnight and very early in the morning before sunrise, the water temperature can approach freezing point.

If the hot sensor measures that the water temperature in the solar collectors is approaching freezing, the circulator will activate. Water from the solar storage tank, containing more energy than the water in the solar collectors, will circulate through the solar collectors keeping the water temperature above freezing point. The circulator will remain on for some minutes and until the hot sensor measures a water temperature at a safe level above freezing. When both of these conditions are met, the circulator will deactivate. The water heater will then enter standby mode.

Standby Mode

The water heater will be in Standby mode whenever conditions are not favourable for solar heating in Normal operation, and Over-temperature operation and Night Time Cooling are not required or have been completed, and conditions are not cold enough for or in-between Freeze Protection operation.

Image
270 mdv with collectors low res reduced

* The suggested price is comprised of RRP less the applicable solar incentive and excluding installation. Solar incentive value applies to 322MCS07V system in Zone 3.
^ Energy savings of up to 75% shown are based on Australian Government approved TRNSYS simulation modelling of a Solahart 322MCS07V and using a medium load in Zone 3 and apply when replacing an electric water heater. Any savings will vary depending upon your location, type of Solahart system installed, orientation and inclination of the solar collectors, type of water heater being replaced, hot water consumption and fuel tariff. Maximum financial savings off your hot water bill are achievable when replacing an electric water heater on continuous tariff.
† Solahart Warranty Details: 5/3/2 warranty; 5 year cylinder and collectors supply, 3 year parts, 2 year labour; applies to a single family domestic dwelling only. Without limiting these periods, a 5-year whole-of-product warranty applies where a rebate has been received under Solar Victoria’s Solar Homes Program for installations from 1st July 2023. For further details, call 131 031.
All other applications have a 3/1/1 warranty; 3 year cylinder and collector supply, 1 year parts supply, 1 year labour.

* The suggested price is comprised of RRP less the applicable solar incentive and excluding installation. Solar incentive value applies to 322MCS07V system in Zone 3.
^ Energy savings of up to 75% shown are based on Australian Government approved TRNSYS simulation modelling of a Solahart 322MCS07V and using a medium load in Zone 3 and apply when replacing an electric water heater. Any savings will vary depending upon your location, type of Solahart system installed, orientation and inclination of the solar collectors, type of water heater being replaced, hot water consumption and fuel tariff. Maximum financial savings off your hot water bill are achievable when replacing an electric water heater on continuous tariff.
† Solahart Warranty Details: 5/3/2 warranty; 5 year cylinder and collectors supply, 3 year parts, 2 year labour; applies to a single family domestic dwelling only. Without limiting these periods, a 5-year whole-of-product warranty applies where a rebate has been received under Solar Victoria’s Solar Homes Program for installations from 1st July 2023. For further details, call 131 031.
All other applications have a 3/1/1 warranty; 3 year cylinder and collector supply, 1 year parts supply, 1 year labour.

Streamline 272MCS07V

Submitted by maria@blissmed… on
270L Split System Solar Water Heater with LCS Collectors

The 272MCS07V combines a 270-Litre tank with two LCS solar collectors for efficient water heating in cooler regions. Built for 5-person households.

3-5
Title
Family size
Measurement unit
People
270
Title
Capacity
Measurement unit
Litre
Short measurement unit
L
2
Title
Collectors
5/3/2*
Title
Warranty
Measurement unit
yr
Short measurement unit
Years

Streamline 272MCS07V: Key Attributes

Why Streamline 272MCS07V is a smart choice

The Solahart 272MCS07V delivers dependable solar hot water using a ground-mounted 270L tank and a durable LCS solar collector. This split system is a great option for households of up to five looking to reduce reliance on grid electricity.

Designed with frost protection and rated for installations up to 600m, the 272MCS07V performs well in cooler climates. It’s not recommended for harsh water areas, but it offers energy savings of up to 70% and is backed by a 5-year tank warranty for added peace of mind.

Key Features / USPs:

  • 270L capacity – suits families of up to 5
  • LCS collector for high solar absorption
  • Inbuilt frost protection for year-round use
  • Installed safely at altitudes up to 600m
  • Up to 70% energy savings possible*
  • Covered by Solahart's 5-year tank warranty
  • Not suitable for harsh water conditions^
270
Title
Storage Capacity
Specification group
Measurement unit
litres
Short measurement unit
l
140
Title
Boost Capacity (Electric)
Specification group
Measurement unit
litres
Short measurement unit
l
Indoor/Outdoor
Title
Installation
Specification group
Short measurement unit
l
PN 299293
Title
Solar Controller Kit
Specification group
Short measurement unit
l
82
Title
Weight Empty
Specification group
Measurement unit
kg
Short measurement unit
kg
352
Title
Weight Full
Specification group
Measurement unit
kg
Short measurement unit
kg
1.395
Title
Height
Specification group
Measurement unit
m
0.640
Title
Width
Specification group
Measurement unit
m
Short measurement unit
m
0.680
Title
Depth
Specification group
Measurement unit
m
Cooper sheath immersion element
Title
Heating Unit Type
Specification group
240V 50hz
Title
Supply Voltage
Specification group
1.87
Title
Aperture (heating) Area
Specification group
Measurement unit
m2
1996
Title
Length
Specification group
Measurement unit
mm
1043
Title
Width
Specification group
Measurement unit
mm
82
Title
Height
Specification group
Measurement unit
mm
1.2
Title
Capacity
Specification group
Measurement unit
litres
1000 kPa
Title
Working Pressure
Specification group
36
Title
Weight Emtpy
Specification group
Measurement unit
kg
41
Title
Weight Full
Specification group
Measurement unit
kg
Blue Tinox sputtered selective
Title
Absorber Surface
Specification group
aluminium
Title
Absorber Material
Specification group
copper tube
Title
Riser Material
Specification group
extruded aluminium frame with 0.40mm Zincalume backing sheet
Title
Tray Material
Specification group
38mm glass wool blanket
Title
Insulation Material - Base
Specification group
3.2mm tempered low iron glass
Title
Glass
Specification group
1000 kPa
145 psi
Title
TPR Valve Setting
Specification group
850 kPa
125 psi
Title
ECV* Setting
Specification group
680 kPa
Title
Max. Supply Pressure With ECV
Specification group
800 kPa
Title
Max. Supply Pressure Without ECV
Specification group
200 kPa / 29 psi
Title
Minimum Supply Pressure
Specification group
Rp 3/4
Title
Water Connections Cold
Specification group
Rp 3/4
Title
Water Connections Hot
Specification group
DN15 compression fittings (solar hot and solar cold inlets to tank Rp 3/4)
Title
Water Connections Solar
Specification group

How Split System Solar Water Heaters Work

With open circuit split systems the water is circulated from the tank at ground level through the solar collectors by an electric pump called a 'circulator'. As the sun heats the water in the solar collectors, the increase in temperature activates the circulator. The circulator switches on whenever the water in the solar collectors is hotter than the water in the solar storage tank. The circulator moves the hotter water from the solar collectors through the solar hot pipe to the solar storage tank and the cooler water from the solar storage tank is circulated to the solar collectors via the solar cold pipe to be heated by the sun’s energy. This process continues whilst solar energy is available and the water in the solar storage tank requires heating. The circulator will deactivate when the water temperature in the solar storage tank is around 70°C to 75°C.

The Solahart 272MCS07V split solar water heater is designed to be installed as an electric boosted solar water heater with its booster heating unit connected to a power supply, however it may be installed with an in-series continuous flow or storage booster. If installed with an in-series booster, then the electric booster heating unit will not be connected to a power supply.

Solar Operation

The operation of the circulator is controlled by the combination of:

  • the hot sensor located at the outlet of the solar collectors. The hot sensor measures the water temperature at the outlet of the solar collectors.
  • the cold sensor located at the solar cold outlet at the base of the solar storage tank. The cold sensor measures the water temperature at the bottom of the solar storage tank.
  • the differential controller located in the solar control unit.

With open circuit split systems, the water is circulated from the tank at ground level through the solar collectors by an electric pump called a 'circulator'. As the sun heats the water in the solar collectors, the increase in temperature activates the circulator. The circulator switches on whenever the water in the solar collectors is hotter than the water in the solar storage tank. The circulator moves the hotter water from the solar collectors through the solar hot pipe to the solar storage tank and the cooler water from the solar storage tank is circulated to the solar collectors via the solar cold pipe to be heated by the sun’s energy.

This process continues whilst solar energy is available and the water in the solar storage tank requires heating. The circulator will deactivate when the water temperature in the solar storage tank is around 70°C to 75°C.

During normal operation if the amount of solar energy available reduces, such as when the sky becomes very cloudy or the sun becomes lower in the sky in the late afternoon, and the water no longer gains usable heat from the solar collectors, the circulator will deactivate. The water heater will then enter standby mode.

Over-Temperature Operation

The purpose of the Over-temperature operation is to reduce the amount of overheating or ‘stagnation’ of water in the solar collectors. When the water in the solar storage tank has reached 70°C to 75°C and the circulator has deactivated, the solar collectors will continue to gain heat while solar energy is still available.

If the water in the solar collectors stagnates and its temperature becomes very high, the circulator will activate for a short period to transfer this extra energy to the solar storage tank. The circulator will deactivate when the water temperature in the solar collectors decreases. This process will either repeat for a maximum of eight cycles or until the water temperature in the solar storage tank reaches around 75°C to 80°C or the hot sensor does not sense another increase in water temperature to a stagnation level after a cycle is completed, i.e. the solar energy available reduces.

Night Time Cooling Operation

The purpose of Night Time Cooling operation is to rid the solar storage tank of excess solar energy gained by Over-temperature operation during that day. The desired water temperature in the solar storage tank is to be between 60°C to 70°C.

If the solar control unit has entered Over-temperature operation during the day, then after the water temperature in the solar collectors reduces later in the day or early evening, the circulator will activate. Water from the solar storage tank will circulate through the solar collectors and excess heat in the water will radiate from the solar collectors reducing the temperature of the water. The water will circulate for a period of time and until the water temperature in the solar storage tank is around 60°C to 70°C. The water heater will then enter standby mode.

Freeze Protection Operation

The purpose of Freeze Protection operation is to prevent freezing of water in the solar collectors and solar pipe work in very cold conditions. The water in the solar collectors will cool during periods of no solar gain. In very cold conditions, such as overnight and very early in the morning before sunrise, the water temperature can approach freezing point.

If the hot sensor measures that the water temperature in the solar collectors is approaching freezing, the circulator will activate. Water from the solar storage tank, containing more energy than the water in the solar collectors, will circulate through the solar collectors keeping the water temperature above freezing point. The circulator will remain on for some minutes and until the hot sensor measures a water temperature at a safe level above freezing. When both of these conditions are met, the circulator will deactivate. The water heater will then enter standby mode.

Standby Mode

The water heater will be in Standby mode whenever conditions are not favourable for solar heating in Normal operation, and Over-temperature operation and Night Time Cooling are not required or have been completed, and conditions are not cold enough for or in-between Freeze Protection operation.

Image
270 mdv with collectors low res reduced

* The suggested price is comprised of RRP less the applicable solar incentive and excluding installation. Solar incentive value applies to 272MCS07V system in Zone 3.
^ Energy savings of up to 75% shown are based on Australian Government approved TRNSYS simulation modelling of a Solahart 272MCS07V and using a medium load in Zone 3 and apply when replacing an electric water heater. Any savings will vary depending upon your location, type of Solahart system installed, orientation and inclination of the solar collectors, type of water heater being replaced, hot water consumption and fuel tariff. Maximum financial savings off your hot water bill are achievable when replacing an electric water heater on continuous tariff.
† Solahart Warranty Details: 5/3/2 warranty; 5 year cylinder and collectors supply, 3 year parts, 2 year labour; applies to a single family domestic dwelling only. Without limiting these periods, a 5-year whole-of-product warranty applies where a rebate has been received under Solar Victoria’s Solar Homes Program for installations from 1st July 2023. For further details, call 131 031.
All other applications have a 3/1/1 warranty; 3 year cylinder and collector supply, 1 year parts supply, 1 year labour.

* The suggested price is comprised of RRP less the applicable solar incentive and excluding installation. Solar incentive value applies to 272MCS07V system in Zone 3.
^ Energy savings of up to 75% shown are based on Australian Government approved TRNSYS simulation modelling of a Solahart 272MCS07V and using a medium load in Zone 3 and apply when replacing an electric water heater. Any savings will vary depending upon your location, type of Solahart system installed, orientation and inclination of the solar collectors, type of water heater being replaced, hot water consumption and fuel tariff. Maximum financial savings off your hot water bill are achievable when replacing an electric water heater on continuous tariff.
† Solahart Warranty Details: 5/3/2 warranty; 5 year cylinder and collectors supply, 3 year parts, 2 year labour; applies to a single family domestic dwelling only. Without limiting these periods, a 5-year whole-of-product warranty applies where a rebate has been received under Solar Victoria’s Solar Homes Program for installations from 1st July 2023. For further details, call 131 031.
All other applications have a 3/1/1 warranty; 3 year cylinder and collector supply, 1 year parts supply, 1 year labour.

Streamline 413MLV

Submitted by maria@blissmed… on
Solahart 410-Litre Split System | Efficient Solar Hot Water for 7 People

The Solahart 413MLV provides 410 litres of solar-heated water, ideal for large households. Built for efficiency and frost protection.

6-7
Title
Family size
Measurement unit
People
410
Title
Capacity
Measurement unit
Litre
Short measurement unit
L
3
Title
Collectors
5/3/2
Title
Warranty
Measurement unit
yr
Short measurement unit
Years

Streamline 413MLV: Key Attributes

Why Streamline 413MLV is a smart choice

The Solahart 413MLV is a powerful 410-Litre solar water heater designed to meet the hot water needs of larger families. With a tank located on the ground and three solar collectors on the roof, it’s the ideal choice for homeowners seeking energy savings without compromising performance or aesthetics.

Built with freeze protection and approved for altitudes up to 600m, this system performs reliably in a range of climates. It uses a trusted L collector and can cut your home’s water heating energy use by up to 70%. Like other MDV models, it is not suitable for harsh water areas and comes with a 5-year warranty.

Key Features / USPs:

  • 410L tank – supports large households (up to 7 people)
  • High-efficiency L collector
  • Frost protected for colder regions
  • Suitable for installation up to 600m elevation
  • Reduce energy usage by up to 70%*
  • Covered by Solahart's 5-year warranty
  • Not for homes with poor water quality^
410
Title
Storage Capacity
Specification group
Measurement unit
litres
Short measurement unit
l
220
Title
Boost Capacity (Electric)
Specification group
Measurement unit
litres
Short measurement unit
l
Indoor/Outdoor
Title
Installation
Specification group
Short measurement unit
l
PN 299293
Title
Solar Controller Kit
Specification group
Short measurement unit
l
115
Title
Weight Empty
Specification group
Measurement unit
kg
Short measurement unit
kg
531
Title
Weight Full
Specification group
Measurement unit
kg
Short measurement unit
kg
1.840
Title
Height
Specification group
Measurement unit
m
0.690
Title
Width
Specification group
Measurement unit
m
Short measurement unit
m
0.730
Title
Depth
Specification group
Measurement unit
m
Cooper sheath immersion element
Title
Heating Unit Type
Specification group
240V 50hz
Title
Supply Voltage
Specification group
1.87
Title
Aperture (heating) Area
Specification group
Measurement unit
m2
1943
Title
Length
Specification group
Measurement unit
mm
1027
Title
Width
Specification group
Measurement unit
mm
83
Title
Height
Specification group
Measurement unit
mm
1.2
Title
Capacity
Specification group
Measurement unit
litres
1000 kPa
Title
Working Pressure
Specification group
33
Title
Weight Emtpy
Specification group
Measurement unit
kg
34
Title
Weight Full
Specification group
Measurement unit
kg
Black polyester powder coat
Title
Absorber Surface
Specification group
aluminium
Title
Absorber Material
Specification group
copper tube
Title
Riser Material
Specification group
0.7mm aluminium
Title
Tray Material
Specification group
38mm polyester blanket
Title
Insulation Material - Base
Specification group
3.2mm tempered low iron glass
Title
Glass
Specification group
1000 kPa
145 psi
Title
TPR Valve Setting
Specification group
850 kPa
125 psi
Title
ECV* Setting
Specification group
680 kPa
Title
Max. Supply Pressure With ECV
Specification group
800 kPa
Title
Max. Supply Pressure Without ECV
Specification group
200 kPa / 29 psi
Title
Minimum Supply Pressure
Specification group
Rp 3/4
Title
Water Connections Cold
Specification group
Rp 3/4
Title
Water Connections Hot
Specification group
DN15 compression fittings (solar hot and solar cold inlets to tank RP¾/20
Title
Water Connections Solar
Specification group

How Split System Solar Water Heaters Work

With open circuit split systems the water is circulated from the tank at ground level through the solar collectors by an electric pump called a 'circulator'. As the sun heats the water in the solar collectors, the increase in temperature activates the circulator. The circulator switches on whenever the water in the solar collectors is hotter than the water in the solar storage tank. The circulator moves the hotter water from the solar collectors through the solar hot pipe to the solar storage tank and the cooler water from the solar storage tank is circulated to the solar collectors via the solar cold pipe to be heated by the sun’s energy. This process continues whilst solar energy is available and the water in the solar storage tank requires heating. The circulator will deactivate when the water temperature in the solar storage tank is around 70°C to 75°C.

The Solahart 413MLV split solar water heater is designed to be installed as an electric boosted solar water heater with its booster heating unit connected to a power supply, however it may be installed with an in-series continuous flow or storage booster. If installed with an in-series booster, then the electric booster heating unit will not be connected to a power supply.

Solar Operation

The operation of the circulator is controlled by the combination of:

  • the hot sensor located at the outlet of the solar collectors. The hot sensor measures the water temperature at the outlet of the solar collectors.
  • the cold sensor located at the solar cold outlet at the base of the solar storage tank. The cold sensor measures the water temperature at the bottom of the solar storage tank.
  • the differential controller located in the solar control unit.

With open circuit split systems, the water is circulated from the tank at ground level through the solar collectors by an electric pump called a 'circulator'. As the sun heats the water in the solar collectors, the increase in temperature activates the circulator. The circulator switches on whenever the water in the solar collectors is hotter than the water in the solar storage tank. The circulator moves the hotter water from the solar collectors through the solar hot pipe to the solar storage tank and the cooler water from the solar storage tank is circulated to the solar collectors via the solar cold pipe to be heated by the sun’s energy.

This process continues whilst solar energy is available and the water in the solar storage tank requires heating. The circulator will deactivate when the water temperature in the solar storage tank is around 70°C to 75°C.

During normal operation if the amount of solar energy available reduces, such as when the sky becomes very cloudy or the sun becomes lower in the sky in the late afternoon, and the water no longer gains usable heat from the solar collectors, the circulator will deactivate. The water heater will then enter standby mode.

Over-Temperature Operation

The purpose of the Over-temperature operation is to reduce the amount of overheating or ‘stagnation’ of water in the solar collectors. When the water in the solar storage tank has reached 70°C to 75°C and the circulator has deactivated, the solar collectors will continue to gain heat while solar energy is still available.

If the water in the solar collectors stagnates and its temperature becomes very high, the circulator will activate for a short period to transfer this extra energy to the solar storage tank. The circulator will deactivate when the water temperature in the solar collectors decreases. This process will either repeat for a maximum of eight cycles or until the water temperature in the solar storage tank reaches around 75°C to 80°C or the hot sensor does not sense another increase in water temperature to a stagnation level after a cycle is completed, i.e. the solar energy available reduces.

Night Time Cooling Operation

The purpose of Night Time Cooling operation is to rid the solar storage tank of excess solar energy gained by Over-temperature operation during that day. The desired water temperature in the solar storage tank is to be between 60°C to 70°C.

If the solar control unit has entered Over-temperature operation during the day, then after the water temperature in the solar collectors reduces later in the day or early evening, the circulator will activate. Water from the solar storage tank will circulate through the solar collectors and excess heat in the water will radiate from the solar collectors reducing the temperature of the water. The water will circulate for a period of time and until the water temperature in the solar storage tank is around 60°C to 70°C. The water heater will then enter standby mode.

Freeze Protection Operation

The purpose of Freeze Protection operation is to prevent freezing of water in the solar collectors and solar pipe work in very cold conditions. The water in the solar collectors will cool during periods of no solar gain. In very cold conditions, such as overnight and very early in the morning before sunrise, the water temperature can approach freezing point.

If the hot sensor measures that the water temperature in the solar collectors is approaching freezing, the circulator will activate. Water from the solar storage tank, containing more energy than the water in the solar collectors, will circulate through the solar collectors keeping the water temperature above freezing point. The circulator will remain on for some minutes and until the hot sensor measures a water temperature at a safe level above freezing. When both of these conditions are met, the circulator will deactivate. The water heater will then enter standby mode.

Standby Mode

The water heater will be in Standby mode whenever conditions are not favourable for solar heating in Normal operation, and Over-temperature operation and Night Time Cooling are not required or have been completed, and conditions are not cold enough for or in-between Freeze Protection operation.

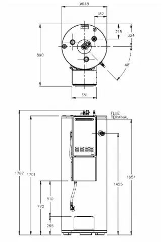
Image
Streamline dimensions

* The suggested price is comprised of RRP less the applicable solar incentive and excluding installation. Solar incentive value applies to 413MLV system in Zone 3.
^ Energy savings of up to 65% shown are based on Australian Government approved TRNSYS simulation modelling of a Solahart 413MLV and using a large load in Zone 3 and apply when replacing an electric water heater. Any savings will vary depending upon your location, type of Solahart system installed, orientation and inclination of the solar collectors, type of water heater being replaced, hot water consumption and fuel tariff. Maximum financial savings off your hot water bill are achievable when replacing an electric water heater on continuous tariff.
† Solahart Warranty Details: 5/3/2 warranty; 5 year cylinder and collectors supply, 3 year parts, 2 year labour; applies to a single family domestic dwelling only. Without limiting these periods, a 5-year whole-of-product warranty applies where a rebate has been received under Solar Victoria’s Solar Homes Program for installations from 1st July 2023. For further details, call 131 031.
All other applications have a 3/1/1 warranty; 3 year cylinder and collector supply, 1 year parts supply, 1 year labour.

* The suggested price is comprised of RRP less the applicable solar incentive and excluding installation. Solar incentive value applies to 413MLV system in Zone 3.
^ Energy savings of up to 65% shown are based on Australian Government approved TRNSYS simulation modelling of a Solahart 413MLV and using a large load in Zone 3 and apply when replacing an electric water heater. Any savings will vary depending upon your location, type of Solahart system installed, orientation and inclination of the solar collectors, type of water heater being replaced, hot water consumption and fuel tariff. Maximum financial savings off your hot water bill are achievable when replacing an electric water heater on continuous tariff.
† Solahart Warranty Details: 5/3/2 warranty; 5 year cylinder and collectors supply, 3 year parts, 2 year labour; applies to a single family domestic dwelling only. Without limiting these periods, a 5-year whole-of-product warranty applies where a rebate has been received under Solar Victoria’s Solar Homes Program for installations from 1st July 2023. For further details, call 131 031.
All other applications have a 3/1/1 warranty; 3 year cylinder and collector supply, 1 year parts supply, 1 year labour.

Streamline 322MLV

Submitted by maria@blissmed… on
Solar Water Heater | 320L Split System for Larger Families

The Solahart 322MLV is a 320-Litre split system with advanced freeze protection, designed for families of up to 6 in colder Australian climates.

4-6
Title
Family size
Measurement unit
People
320
Title
Capacity
Measurement unit
Litre
Short measurement unit
L
2
Title
Collectors
5/3/2
Title
Warranty
Measurement unit
yr
Short measurement unit
Years

Streamline 322MLV: Key Attributes

Why Streamline  322MLV is a smart choice

The 322MLV is one of Solahart’s largest MDV split systems, offering a 320L ground-mounted storage tank paired with a roof-mounted L collector. It’s tailored for larger households needing consistent hot water while minimising energy bills and environmental impact.

This model includes integrated freeze protection and is suitable for installations up to 600 metres above sea level, delivering dependable year-round performance. Not designed for use in harsh water regions, the 322MLV is backed by a 5-year tank warranty and capable of reducing hot water energy use by up to 70%.

Key Features / USPs:

  • 320L tank – great for homes of up to 6 people
  • L collector provides optimal solar gain
  • Freeze-protected system for winter resilience
  • Certified for high-altitude (up to 600m) installs
  • Save on energy costs with up to 70% efficiency*
  • 5-year Solahart warranty coverage
  • Not suitable for harsh water areas^
320
Title
Storage Capacity
Specification group
Measurement unit
litres
Short measurement unit
l
170
Title
Boost Capacity (Electric)
Specification group
Measurement unit
litres
Short measurement unit
l
Indoor/Outdoor
Title
Installation
Specification group
Short measurement unit
l
PN 299293
Title
Solar Controller Kit
Specification group
Short measurement unit
l
92
Title
Weight Empty
Specification group
Measurement unit
kg
Short measurement unit
kg
418
Title
Weight Full
Specification group
Measurement unit
kg
Short measurement unit
kg
1.640
Title
Height
Specification group
Measurement unit
m
0.640
Title
Width
Specification group
Measurement unit
m
Short measurement unit
m
0.680
Title
Depth
Specification group
Measurement unit
m
Cooper sheath immersion element
Title
Heating Unit Type
Specification group
240V 50hz
Title
Supply Voltage
Specification group
1.87
Title
Aperture (heating) Area
Specification group
Measurement unit
m2
1943
Title
Length
Specification group
Measurement unit
mm
1027
Title
Width
Specification group
Measurement unit
mm
83
Title
Height
Specification group
Measurement unit
mm
1.2
Title
Capacity
Specification group
Measurement unit
litres
1000 kPa
Title
Working Pressure
Specification group
33
Title
Weight Emtpy
Specification group
Measurement unit
kg
34
Title
Weight Full
Specification group
Measurement unit
kg
Black polyester powder coat
Title
Absorber Surface
Specification group
aluminium
Title
Absorber Material
Specification group
copper tube
Title
Riser Material
Specification group
0.7mm aluminium
Title
Tray Material
Specification group
38mm polyester blanket
Title
Insulation Material - Base
Specification group
3.2mm tempered low iron glass
Title
Glass
Specification group
1000 kPa
145 psi
Title
TPR Valve Setting
Specification group
850 kPa
125 psi
Title
ECV* Setting
Specification group
680 kPa
Title
Max. Supply Pressure With ECV
Specification group
800 kPa
Title
Max. Supply Pressure Without ECV
Specification group
200 kPa / 29 psi
Title
Minimum Supply Pressure
Specification group
Rp 3/4
Title
Water Connections Cold
Specification group
Rp 3/4
Title
Water Connections Hot
Specification group
DN15 compression fittings (solar hot and solar cold inlets to tank RP¾/20
Title
Water Connections Solar
Specification group

How Split System Solar Water Heaters Work

With open circuit split systems the water is circulated from the tank at ground level through the solar collectors by an electric pump called a 'circulator'. As the sun heats the water in the solar collectors, the increase in temperature activates the circulator. The circulator switches on whenever the water in the solar collectors is hotter than the water in the solar storage tank. The circulator moves the hotter water from the solar collectors through the solar hot pipe to the solar storage tank and the cooler water from the solar storage tank is circulated to the solar collectors via the solar cold pipe to be heated by the sun’s energy. This process continues whilst solar energy is available and the water in the solar storage tank requires heating. The circulator will deactivate when the water temperature in the solar storage tank is around 70°C to 75°C.

The Solahart 322MLV split solar water heater is designed to be installed as an electric boosted solar water heater with its booster heating unit connected to a power supply, however it may be installed with an in-series continuous flow or storage booster. If installed with an in-series booster, then the electric booster heating unit will not be connected to a power supply.

Solar Operation

The operation of the circulator is controlled by the combination of:

  • the hot sensor located at the outlet of the solar collectors. The hot sensor measures the water temperature at the outlet of the solar collectors.
  • the cold sensor located at the solar cold outlet at the base of the solar storage tank. The cold sensor measures the water temperature at the bottom of the solar storage tank.
  • the differential controller located in the solar control unit.

With open circuit split systems, the water is circulated from the tank at ground level through the solar collectors by an electric pump called a 'circulator'. As the sun heats the water in the solar collectors, the increase in temperature activates the circulator. The circulator switches on whenever the water in the solar collectors is hotter than the water in the solar storage tank. The circulator moves the hotter water from the solar collectors through the solar hot pipe to the solar storage tank and the cooler water from the solar storage tank is circulated to the solar collectors via the solar cold pipe to be heated by the sun’s energy.

This process continues whilst solar energy is available and the water in the solar storage tank requires heating. The circulator will deactivate when the water temperature in the solar storage tank is around 70°C to 75°C.

During normal operation if the amount of solar energy available reduces, such as when the sky becomes very cloudy or the sun becomes lower in the sky in the late afternoon, and the water no longer gains usable heat from the solar collectors, the circulator will deactivate. The water heater will then enter standby mode.

Over-Temperature Operation

The purpose of the Over-temperature operation is to reduce the amount of overheating or ‘stagnation’ of water in the solar collectors. When the water in the solar storage tank has reached 70°C to 75°C and the circulator has deactivated, the solar collectors will continue to gain heat while solar energy is still available.

If the water in the solar collectors stagnates and its temperature becomes very high, the circulator will activate for a short period to transfer this extra energy to the solar storage tank. The circulator will deactivate when the water temperature in the solar collectors decreases. This process will either repeat for a maximum of eight cycles or until the water temperature in the solar storage tank reaches around 75°C to 80°C or the hot sensor does not sense another increase in water temperature to a stagnation level after a cycle is completed, i.e. the solar energy available reduces.

Night Time Cooling Operation

The purpose of Night Time Cooling operation is to rid the solar storage tank of excess solar energy gained by Over-temperature operation during that day. The desired water temperature in the solar storage tank is to be between 60°C to 70°C.

If the solar control unit has entered Over-temperature operation during the day, then after the water temperature in the solar collectors reduces later in the day or early evening, the circulator will activate. Water from the solar storage tank will circulate through the solar collectors and excess heat in the water will radiate from the solar collectors reducing the temperature of the water. The water will circulate for a period of time and until the water temperature in the solar storage tank is around 60°C to 70°C. The water heater will then enter standby mode.

Freeze Protection Operation

The purpose of Freeze Protection operation is to prevent freezing of water in the solar collectors and solar pipe work in very cold conditions. The water in the solar collectors will cool during periods of no solar gain. In very cold conditions, such as overnight and very early in the morning before sunrise, the water temperature can approach freezing point.

If the hot sensor measures that the water temperature in the solar collectors is approaching freezing, the circulator will activate. Water from the solar storage tank, containing more energy than the water in the solar collectors, will circulate through the solar collectors keeping the water temperature above freezing point. The circulator will remain on for some minutes and until the hot sensor measures a water temperature at a safe level above freezing. When both of these conditions are met, the circulator will deactivate. The water heater will then enter standby mode.

Standby Mode

The water heater will be in Standby mode whenever conditions are not favourable for solar heating in Normal operation, and Over-temperature operation and Night Time Cooling are not required or have been completed, and conditions are not cold enough for or in-between Freeze Protection operation.

Image
Streamline dimensions

* The suggested price is comprised of RRP less the applicable solar incentive and excluding installation. Solar incentive value applies to 322MLV system in Zone 3.
^ Energy savings of up to 65% shown are based on Australian Government approved TRNSYS simulation modelling of a Solahart 322MLV and using a medium load in Zone 3 and apply when replacing an electric water heater. Any savings will vary depending upon your location, type of Solahart system installed, orientation and inclination of the solar collectors, type of water heater being replaced, hot water consumption and fuel tariff. Maximum financial savings off your hot water bill are achievable when replacing an electric water heater on continuous tariff.
† Solahart Warranty Details: 5/3/2 warranty; 5 year cylinder and collectors supply, 3 year parts, 2 year labour; applies to a single family domestic dwelling only. Without limiting these periods, a 5-year whole-of-product warranty applies where a rebate has been received under Solar Victoria’s Solar Homes Program for installations from 1st July 2023. For further details, call 131 031.
All other applications have a 3/1/1 warranty; 3 year cylinder and collector supply, 1 year parts supply, 1 year labour.

* The suggested price is comprised of RRP less the applicable solar incentive and excluding installation. Solar incentive value applies to 322MLV system in Zone 3.
^ Energy savings of up to 65% shown are based on Australian Government approved TRNSYS simulation modelling of a Solahart 322MLV and using a medium load in Zone 3 and apply when replacing an electric water heater. Any savings will vary depending upon your location, type of Solahart system installed, orientation and inclination of the solar collectors, type of water heater being replaced, hot water consumption and fuel tariff. Maximum financial savings off your hot water bill are achievable when replacing an electric water heater on continuous tariff.
† Solahart Warranty Details: 5/3/2 warranty; 5 year cylinder and collectors supply, 3 year parts, 2 year labour; applies to a single family domestic dwelling only. Without limiting these periods, a 5-year whole-of-product warranty applies where a rebate has been received under Solar Victoria’s Solar Homes Program for installations from 1st July 2023. For further details, call 131 031.
All other applications have a 3/1/1 warranty; 3 year cylinder and collector supply, 1 year parts supply, 1 year labour.

Streamline 272MLV

Submitted by maria@blissmed… on
Solahart Split System Solar Water Heater | 270L

The Solahart 272MLV is a compact 270-Litre split system open-circuit solar water heater with frost protection, perfect for households of up to 5 people.

3-5
Title
Family size
Measurement unit
People
270
Title
Capacity
Measurement unit
Litre
Short measurement unit
L
2
Title
Collectors
5/3/2
Title
Warranty
Measurement unit
yr
Short measurement unit
Years

Streamline 272MLV: Key Attributes

Why Streamline  272MLV is a smart choice

Ideal for mid-sized families, the Solahart 272MLV is a 270L split system solar water heater combining a ground-level tank and a roof-mounted L collector. It offers a reliable and space-efficient alternative to roof-mounted tanks—perfect for homes with limited structural support or visual concerns.

The 272MLV features electronically controlled frost protection, making it suitable for cold weather installations, and is approved for use at altitudes up to 600 metres. It delivers energy savings of up to 70% and can cut carbon emissions by as much as 2.7 tonnes per year. Backed by a 5-year tank warranty, this system is a smart, sustainable choice for Australian households. Not suitable for harsh water areas.

Key Features / USPs:

  • 270L capacity – ideal for homes of up to 5
  • Trusted L solar collector for reliable performance
  • Built-in freeze protection for colder climates
  • 5-year tank warranty (MDV Series)
  • Up to 70% energy savings*
  • Reduces CO₂ by up to 2.7 tonnes annually
  • Not for use in areas with harsh water^
270
Title
Storage Capacity
Specification group
Measurement unit
litres
Short measurement unit
l
140
Title
Boost Capacity (Electric)
Specification group
Measurement unit
litres
Short measurement unit
l
Indoor/Outdoor
Title
Installation
Specification group
Short measurement unit
l
PN 299293
Title
Solar Controller Kit
Specification group
Short measurement unit
l
82
Title
Weight Empty
Specification group
Measurement unit
kg
Short measurement unit
kg
352
Title
Weight Full
Specification group
Measurement unit
kg
Short measurement unit
kg
1.395
Title
Height
Specification group
Measurement unit
m
0.640
Title
Width
Specification group
Measurement unit
m
Short measurement unit
m
0.680
Title
Depth
Specification group
Measurement unit
m
Cooper sheath immersion element
Title
Heating Unit Type
Specification group
240V 50hz
Title
Supply Voltage
Specification group
1.87
Title
Aperture (heating) Area
Specification group
Measurement unit
m2
1943
Title
Length
Specification group
Measurement unit
mm
1027
Title
Width
Specification group
Measurement unit
mm
83
Title
Height
Specification group
Measurement unit
mm
1.2
Title
Capacity
Specification group
Measurement unit
litres
1000 kPa
Title
Working Pressure
Specification group
33
Title
Weight Emtpy
Specification group
Measurement unit
kg
34
Title
Weight Full
Specification group
Measurement unit
kg
Black polyester powder coat
Title
Absorber Surface
Specification group
aluminium
Title
Absorber Material
Specification group
copper tube
Title
Riser Material
Specification group
0.7mm aluminium
Title
Tray Material
Specification group
38mm polyester blanket
Title
Insulation Material - Base
Specification group
3.2mm tempered low iron glass
Title
Glass
Specification group
1000 kPa
145 psi
Title
TPR Valve Setting
Specification group
850 kPa
125 psi
Title
ECV* Setting
Specification group
680 kPa
Title
Max. Supply Pressure With ECV
Specification group
800 kPa
Title
Max. Supply Pressure Without ECV
Specification group
200 kPa / 29 psi
Title
Minimum Supply Pressure
Specification group
Rp 3/4
Title
Water Connections Cold
Specification group
Rp 3/4
Title
Water Connections Hot
Specification group
DN15 compression fittings (solar hot and solar cold inlets to tank Rp 3/4)
Title
Water Connections Solar
Specification group

How Split System Solar Water Heaters Work

With open circuit split systems the water is circulated from the tank at ground level through the solar collectors by an electric pump called a 'circulator'. As the sun heats the water in the solar collectors, the increase in temperature activates the circulator. The circulator switches on whenever the water in the solar collectors is hotter than the water in the solar storage tank. The circulator moves the hotter water from the solar collectors through the solar hot pipe to the solar storage tank and the cooler water from the solar storage tank is circulated to the solar collectors via the solar cold pipe to be heated by the sun’s energy. 

This process continues whilst solar energy is available and the water in the solar storage tank requires heating. The circulator will deactivate when the water temperature in the solar storage tank is around 70°C to 75°C.

The Solahart 272MLV split solar water heater is designed to be installed as an electric boosted solar water heater with its booster heating unit connected to a power supply, however it may be installed with an in-series continuous flow or storage booster. If installed with an in-series booster, then the electric booster heating unit will not be connected to a power supply.

Solar Operation

The operation of the circulator is controlled by the combination of:

  • the hot sensor located at the outlet of the solar collectors. The hot sensor measures the water temperature at the outlet of the solar collectors.
  • the cold sensor located at the solar cold outlet at the base of the solar storage tank. The cold sensor measures the water temperature at the bottom of the solar storage tank.
  • the differential controller located in the solar control unit.

With open circuit split systems, the water is circulated from the tank at ground level through the solar collectors by an electric pump called a 'circulator'. As the sun heats the water in the solar collectors, the increase in temperature activates the circulator. The circulator switches on whenever the water in the solar collectors is hotter than the water in the solar storage tank. The circulator moves the hotter water from the solar collectors through the solar hot pipe to the solar storage tank and the cooler water from the solar storage tank is circulated to the solar collectors via the solar cold pipe to be heated by the sun’s energy.

This process continues whilst solar energy is available and the water in the solar storage tank requires heating. The circulator will deactivate when the water temperature in the solar storage tank is around 70°C to 75°C.

During normal operation if the amount of solar energy available reduces, such as when the sky becomes very cloudy or the sun becomes lower in the sky in the late afternoon, and the water no longer gains usable heat from the solar collectors, the circulator will deactivate. The water heater will then enter standby mode.

Over-Temperature Operation

The purpose of the Over-temperature operation is to reduce the amount of overheating or ‘stagnation’ of water in the solar collectors. When the water in the solar storage tank has reached 70°C to 75°C and the circulator has deactivated, the solar collectors will continue to gain heat while solar energy is still available.

If the water in the solar collectors stagnates and its temperature becomes very high, the circulator will activate for a short period to transfer this extra energy to the solar storage tank. The circulator will deactivate when the water temperature in the solar collectors decreases. This process will either repeat for a maximum of eight cycles or until the water temperature in the solar storage tank reaches around 75°C to 80°C or the hot sensor does not sense another increase in water temperature to a stagnation level after a cycle is completed, i.e. the solar energy available reduces.

Night Time Cooling Operation

The purpose of Night Time Cooling operation is to rid the solar storage tank of excess solar energy gained by Over-temperature operation during that day. The desired water temperature in the solar storage tank is to be between 60°C to 70°C.

If the solar control unit has entered Over-temperature operation during the day, then after the water temperature in the solar collectors reduces later in the day or early evening, the circulator will activate. Water from the solar storage tank will circulate through the solar collectors and excess heat in the water will radiate from the solar collectors reducing the temperature of the water. The water will circulate for a period of time and until the water temperature in the solar storage tank is around 60°C to 70°C. The water heater will then enter standby mode.

Freeze Protection Operation

The purpose of Freeze Protection operation is to prevent freezing of water in the solar collectors and solar pipe work in very cold conditions. The water in the solar collectors will cool during periods of no solar gain. In very cold conditions, such as overnight and very early in the morning before sunrise, the water temperature can approach freezing point.

If the hot sensor measures that the water temperature in the solar collectors is approaching freezing, the circulator will activate. Water from the solar storage tank, containing more energy than the water in the solar collectors, will circulate through the solar collectors keeping the water temperature above freezing point. The circulator will remain on for some minutes and until the hot sensor measures a water temperature at a safe level above freezing. When both of these conditions are met, the circulator will deactivate. The water heater will then enter standby mode.

This process will repeat whenever the hot sensor measures that the water temperature in the solar collectors is approaching freezing.

Standby Mode

The water heater will be in Standby mode whenever conditions are not favourable for solar heating in Normal operation, and Over-temperature operation and Night Time Cooling are not required or have been completed, and conditions are not cold enough for or in-between Freeze Protection operation.

Image
270 mdv with collectors low res reduced

* The suggested price is comprised of RRP less the applicable solar incentive and excluding installation. Solar incentive value applies to 272MLV system in Zone 3.
^ Energy savings of up to 65% shown are based on Australian Government approved TRNSYS simulation modelling of a Solahart 272MLV and using a medium load in Zone 3 and apply when replacing an electric water heater. Any savings will vary depending upon your location, type of Solahart system installed, orientation and inclination of the solar collectors, type of water heater being replaced, hot water consumption and fuel tariff. Maximum financial savings off your hot water bill are achievable when replacing an electric water heater on continuous tariff..
† Solahart Warranty Details: 5/3/2 warranty; 5 year cylinder and collectors supply, 3 year parts, 2 year labour; applies to a single family domestic dwelling only. Without limiting these periods, a 5-year whole-of-product warranty applies where a rebate has been received under Solar Victoria’s Solar Homes Program for installations from 1st July 2023. For further details, call 131 031. 
All other applications have a 3/1/1 warranty; 3 year cylinder and collector supply, 1 year parts supply, 1 year labour.

* The suggested price is comprised of RRP less the applicable solar incentive and excluding installation. Solar incentive value applies to 272MLV system in Zone 3.
^ Energy savings of up to 65% shown are based on Australian Government approved TRNSYS simulation modelling of a Solahart 272MLV and using a medium load in Zone 3 and apply when replacing an electric water heater. Any savings will vary depending upon your location, type of Solahart system installed, orientation and inclination of the solar collectors, type of water heater being replaced, hot water consumption and fuel tariff. Maximum financial savings off your hot water bill are achievable when replacing an electric water heater on continuous tariff..
† Solahart Warranty Details: 5/3/2 warranty; 5 year cylinder and collectors supply, 3 year parts, 2 year labour; applies to a single family domestic dwelling only. Without limiting these periods, a 5-year whole-of-product warranty applies where a rebate has been received under Solar Victoria’s Solar Homes Program for installations from 1st July 2023. For further details, call 131 031. 
All other applications have a 3/1/1 warranty; 3 year cylinder and collector supply, 1 year parts supply, 1 year labour.

Streamline 322RCS07X

Submitted by maria@blissmed… on
Solahart Solar Water Heater | 320L Split System

Designed for larger families, the Solahart 322RCS07X features a 320-Litre tank and CSA2007 collector. Efficient solar performance with frost protection built in.

4
Title
Family size
Measurement unit
People
320
Title
Capacity
Measurement unit
Litre
Short measurement unit
L
2
Title
Collectors
10/3/2
Title
Warranty
Measurement unit
yr
Short measurement unit
Years

Streamline 322RCS07X: Key Attributes

Why Streamline 322RCS07X is a smart choice

The Solahart 322RCS07X offers powerful solar water heating performance for larger households. With a generous 320-Litre ground-mounted storage tank and a rugged CSA2007 solar collector, it’s engineered to deliver consistent hot water while helping reduce energy costs and emissions.

Ideal for properties where a roof-mounted tank is not preferred, this split system includes freeze protection and is approved for installations up to 600m elevation. It can also be installed as a solar preheater with a Solahart inline gas booster†, adding flexibility for different home setups. Not recommended for use in areas with harsh water conditions.

Key Features / USPs:

  • 320L capacity – ideal for homes with up to 6 people
  • CSA2007 collector for proven solar performance
  • Advanced frost protection for year-round reliability
  • Compatible with Solahart gas booster systems†
  • Approved for installation up to 600m altitude
  • Significant savings on energy and carbon emissions*
  • Covered by Solahart’s 10-year tank warranty
  • Not suitable for hard water conditions^
320
Title
Storage Capacity
Specification group
Measurement unit
litres
Short measurement unit
l
170
Title
Boost Capacity (Electric)
Specification group
Measurement unit
litres
Short measurement unit
l
Indoor/Outdoor
Title
Installation
Specification group
Short measurement unit
l
Kit number 299316
Title
Solar Controller Kit
Specification group
Short measurement unit
l
92
Title
Weight Empty
Specification group
Measurement unit
kg
Short measurement unit
kg
417
Title
Weight Full
Specification group
Measurement unit
kg
Short measurement unit
kg
1.640
Title
Height
Specification group
Measurement unit
m
0.640
Title
Width
Specification group
Measurement unit
m
Short measurement unit
m
0.680
Title
Depth
Specification group
Measurement unit
m
Cooper sheath immersion element
Title
Heating Unit Type
Specification group
220 V - 240 V 50 Hz
Title
Supply Voltage
Specification group
1.87
Title
Aperture (heating) Area
Specification group
Measurement unit
m2
1996
Title
Length
Specification group
Measurement unit
mm
1043
Title
Width
Specification group
Measurement unit
mm
82
Title
Height
Specification group
Measurement unit
mm
1.5
Title
Capacity
Specification group
Measurement unit
litres
36
Title
Weight Emtpy
Specification group
Measurement unit
kg
38
Title
Weight Full
Specification group
Measurement unit
kg
1000 kPa
145 psi
Title
Working Pressure
Specification group
Tinox sputtered selective surface
Title
Absorber Surface
Specification group
copper
Title
Absorber Material
Specification group
copper tube
Title
Header and Riser Material
Specification group
extruded aluminium
Title
Tray Frame Material
Specification group
38mm glass wool blanket
Title
Insulation Material - Base
Specification group
3.2 mm tempered low iron glass
Title
Glass
Specification group
2 x CSA2007 Collectors
Title
Collector Installation (2)
Specification group
2.0
Title
Roof Area Dimensions (3) - Length
Specification group
Measurement unit
m
2.3
Title
Roof Area Dimensions (3) - Width
Specification group
Measurement unit
m
1
Title
Collector Kit (PN 12103016)
Specification group
1000 kPa
145 psi
Title
TPR Valve Setting
Specification group
850 kPa
125 psi
Title
ECV* Setting
Specification group
680 kPa / 100 psi
Title
Max. Supply Pressure With ECV
Specification group
800 kPa / 115 psi
Title
Max. Supply Pressure Without ECV
Specification group
200 kPa / 29 psi
Title
Minimum Supply Pressure
Specification group
Rp 3/4
Title
Water Connections Cold
Specification group
Rp 3/4
Title
Water Connections Hot
Specification group
DN15 compression fittings (solar hot and solar cold inlets to tank Rp 3/4)
Title
Water Connections Solar
Specification group

How Split System Solar Water Heaters Work

The Solahart 322RCS07X split solar water heater is designed to be installed as an electric boosted solar water heater with its booster heating unit connected to a power supply, however it may be installed with an in-series continuous flow or storage booster. If installed with an in-series booster, then the electric booster heating unit will not be connected to a power supply.

Solar Operation

The operation of the circulator is controlled by the combination of:

  • the hot sensor located at the outlet of the solar collectors. The hot sensor measures the water temperature at the outlet of the solar collectors.
  • the cold sensor located at the solar cold outlet at the base of the solar storage tank. The cold sensor measures the water temperature at the bottom of the solar storage tank.
  • the differential controller located in the solar control unit.

With open circuit split systems, the water is circulated from the tank at ground level through the solar collectors by an electric pump called a 'circulator'. As the sun heats the water in the solar collectors, the increase in temperature activates the circulator. The circulator switches on whenever the water in the solar collectors is hotter than the water in the solar storage tank. The circulator moves the hotter water from the solar collectors through the solar hot pipe to the solar storage tank and the cooler water from the solar storage tank is circulated to the solar collectors via the solar cold pipe to be heated by the sun’s energy.

This process continues whilst solar energy is available and the water in the solar storage tank requires heating. The circulator will deactivate when the water temperature in the solar storage tank is around 70°C to 75°C.

During normal operation if the amount of solar energy available reduces, such as when the sky becomes very cloudy or the sun becomes lower in the sky in the late afternoon, and the water no longer gains usable heat from the solar collectors, the circulator will deactivate. The water heater will then enter standby mode.

Over-Temperature Operation

The purpose of the Over-temperature operation is to reduce the amount of overheating or ‘stagnation’ of water in the solar collectors. When the water in the solar storage tank has reached 70°C to 75°C and the circulator has deactivated, the solar collectors will continue to gain heat while solar energy is still available.

If the water in the solar collectors stagnates and its temperature becomes very high, the circulator will activate for a short period to transfer this extra energy to the solar storage tank. The circulator will deactivate when the water temperature in the solar collectors decreases. This process will either repeat for a maximum of eight cycles or until the water temperature in the solar storage tank reaches around 75°C to 80°C or the hot sensor does not sense another increase in water temperature to a stagnation level after a cycle is completed, i.e. the solar energy available reduces.

Night Time Cooling Operation

The purpose of Night Time Cooling operation is to rid the solar storage tank of excess solar energy gained by Over-temperature operation during that day. The desired water temperature in the solar storage tank is to be between 60°C to 70°C.

If the solar control unit has entered Over-temperature operation during the day, then after the water temperature in the solar collectors reduces later in the day or early evening, the circulator will activate. Water from the solar storage tank will circulate through the solar collectors and excess heat in the water will radiate from the solar collectors reducing the temperature of the water. The water will circulate for a period of time and until the water temperature in the solar storage tank is around 60°C to 70°C. The water heater will then enter standby mode.

Freeze Protection Operation

The purpose of Freeze Protection operation is to prevent freezing of water in the solar collectors and solar pipe work in very cold conditions. The water in the solar collectors will cool during periods of no solar gain. In very cold conditions, such as overnight and very early in the morning before sunrise, the water temperature can approach freezing point.

If the hot sensor measures that the water temperature in the solar collectors is approaching freezing, the circulator will activate. Water from the solar storage tank, containing more energy than the water in the solar collectors, will circulate through the solar collectors keeping the water temperature above freezing point. The circulator will remain on for some minutes and until the hot sensor measures a water temperature at a safe level above freezing. When both of these conditions are met, the circulator will deactivate. The water heater will then enter standby mode.

This process will repeat whenever the hot sensor measures that the water temperature in the solar collectors is approaching freezing.

This model also has enhanced frost protection. The frost element located at the bottom of the solar storage tank will turn on when the circulator activates and the cold sensor measures a very low water temperature at the bottom of the tank. The purpose of the anti-freeze heating unit is to provide additional energy to the water to assist in the prevention of freezing in the solar pipe work and solar collectors. The frost element will turn off when either the water temperature has risen by a few degrees or the circulator deactivates. The water heater will then enter standby mode.

Standby Mode

The water heater will be in Standby mode whenever conditions are not favourable for solar heating in Normal operation, and Over-temperature operation and Night Time Cooling are not required or have been completed, and conditions are not cold enough for or in-between Freeze Protection operation.

Image
Solahart solar ready 270l

* The suggested price is comprised of RRP less the applicable solar incentive and excluding installation. Solar incentive value applies to 322RCS07X system in Zone 3.
^ Energy savings of up to 75% shown are based on Australian Government approved TRNSYS simulation modelling of a Solahart 322RCS07X and using a medium load in Zone 3 and apply when replacing an electric water heater. Any savings will vary depending upon your location, type of Solahart system installed, orientation and inclination of the solar collectors, type of water heater being replaced, hot water consumption and fuel tariff. Maximum financial savings off your hot water bill are achievable when replacing an electric water heater on continuous tariff.
† Solahart Warranty Details: 10/3/2 warranty; 10 year cylinder and collector supply, 3 year cylinder and collector labour, 2 year parts supply including labour; applies to a single family domestic dwelling only. Without limiting these periods, a 5-year whole-of-product warranty applies where a rebate has been received under Solar Victoria’s Solar Homes Program for installations from 1st July 2023. For further details, call 131 031.
All other applications have a 3/1/1 warranty; 3 year cylinder and collector supply, 1 year parts supply, 1 year labour.
‡ Enhanced Frost Protection – these systems have a level of enhanced recirculating freeze protection designed to guard against freeze conditions. These systems are suitable to be installed at an altitude not exceeding 600 m above sea level.
∠ Harsh water regions – the Solahart warranty may not apply if the water heater is connected to a water supply which: is scaling with a saturation index >+0.8, or; is corrosive with a saturation index <-1.0, or; has a Total Dissolved Solids content >2500 mg/L.

* The suggested price is comprised of RRP less the applicable solar incentive and excluding installation. Solar incentive value applies to 322RCS07X system in Zone 3.
^ Energy savings of up to 75% shown are based on Australian Government approved TRNSYS simulation modelling of a Solahart 322RCS07X and using a medium load in Zone 3 and apply when replacing an electric water heater. Any savings will vary depending upon your location, type of Solahart system installed, orientation and inclination of the solar collectors, type of water heater being replaced, hot water consumption and fuel tariff. Maximum financial savings off your hot water bill are achievable when replacing an electric water heater on continuous tariff.
† Solahart Warranty Details: 10/3/2 warranty; 10 year cylinder and collector supply, 3 year cylinder and collector labour, 2 year parts supply including labour; applies to a single family domestic dwelling only. Without limiting these periods, a 5-year whole-of-product warranty applies where a rebate has been received under Solar Victoria’s Solar Homes Program for installations from 1st July 2023. For further details, call 131 031.
All other applications have a 3/1/1 warranty; 3 year cylinder and collector supply, 1 year parts supply, 1 year labour.
‡ Enhanced Frost Protection – these systems have a level of enhanced recirculating freeze protection designed to guard against freeze conditions. These systems are suitable to be installed at an altitude not exceeding 600 m above sea level.
∠ Harsh water regions – the Solahart warranty may not apply if the water heater is connected to a water supply which: is scaling with a saturation index >+0.8, or; is corrosive with a saturation index <-1.0, or; has a Total Dissolved Solids content >2500 mg/L.

Streamline 272RCS07XS

Submitted by maria@blissmed… on
Solar Hot Water System | 270L Split Series

The Solahart 272RCS07X features a 270-Litre tank and two CSA2007 collectors for reliable solar hot water. Built for Australian conditions with frost protection.

3
Title
Family size
Measurement unit
People
270
Title
Capacity
Measurement unit
Litre
Short measurement unit
L
2
Title
Collectors
10/3/2
Title
Warranty
Measurement unit
yr
Short measurement unit
Years

Streamline 272RCS07X: Key Attributes

Why Streamline 272RCS07X is a smart choice

The Solahart 272RCS07X is a high-efficiency split system solar water heater built to perform in Australia’s varied conditions. Featuring a 270-litre ground-mounted tank and durable CSA2007 solar collectors, this system is ideal for households of up to five people looking to cut energy costs and reduce emissions.

With built-in frost protection and approval for installation up to 600m altitude, the 272RCS07X provides consistent performance even in cooler climates. It also offers the flexibility to be installed as a solar preheater with a compatible Solahart inline gas booster†—though many homes will benefit from its solar capacity alone. Not suitable for harsh water areas.

Key Features / USPs:

  • 270L tank capacity – ideal for up to 5 people
  • CSA2007 collector designed for durability and efficiency
  • Reliable operation in cold weather with frost protection
  • Suitable for installation up to 600m elevation
  • Optional compatibility with Solahart gas booster†
  • Backed by Solahart’s 10-year tank warranty
  • Save up to 75% on water heating energy use#
  • Not recommended for poor water quality zones^
270
Title
Storage Capacity
Specification group
Measurement unit
litres
Short measurement unit
l
140
Title
Boost Capacity (Electric)
Specification group
Measurement unit
litres
Short measurement unit
l
Indoor/Outdoor
Title
Installation
Specification group
Short measurement unit
l
Kit number 299316
Title
Solar Controller Kit
Specification group
Short measurement unit
l
82
Title
Weight Empty
Specification group
Measurement unit
kg
Short measurement unit
kg
352
Title
Weight Full
Specification group
Measurement unit
kg
Short measurement unit
kg
1.395
Title
Height
Specification group
Measurement unit
m
0.640
Title
Width
Specification group
Measurement unit
m
Short measurement unit
m
0.680
Title
Depth
Specification group
Measurement unit
m
Cooper sheath immersion element
Title
Heating Unit Type
Specification group
220 V - 240 V 50 Hz
Title
Supply Voltage
Specification group
1.87
Title
Aperture (heating) Area
Specification group
Measurement unit
m2
1996
Title
Length
Specification group
Measurement unit
mm
1043
Title
Width
Specification group
Measurement unit
mm
82
Title
Height
Specification group
Measurement unit
mm
1.5
Title
Capacity
Specification group
Measurement unit
litres
36
Title
Weight Emtpy
Specification group
Measurement unit
kg
38
Title
Weight Full
Specification group
Measurement unit
kg
1000 kPa
145 psi
Title
Working Pressure
Specification group
Tinox sputtered selective surface
Title
Absorber Surface
Specification group
copper
Title
Absorber Material
Specification group
copper tube
Title
Header and Riser Material
Specification group
extruded aluminium
Title
Tray Frame Material
Specification group
38mm glass wool blanket
Title
Insulation Material - Base
Specification group
3.2 mm tempered low iron glass
Title
Glass
Specification group
2 x CSA2007 Collectors
Title
Collector Installation (2)
Specification group
2.0
Title
Roof Area Dimensions (3) - Length
Specification group
Measurement unit
m
2.3
Title
Roof Area Dimensions (3) - Width
Specification group
Measurement unit
m
1
Title
Collector Kit (PN 12103016)
Specification group
1000 kPa
145 psi
Title
TPR Valve Setting
Specification group
850 kPa
125 psi
Title
ECV* Setting
Specification group
680 kPa / 100 psi
Title
Max. Supply Pressure With ECV
Specification group
800 kPa / 115 psi
Title
Max. Supply Pressure Without ECV
Specification group
200 kPa / 29 psi
Title
Minimum Supply Pressure
Specification group
Rp 3/4
Title
Water Connections Cold
Specification group
Rp 3/4
Title
Water Connections Hot
Specification group
DN15 compression fittings (solar hot and solar cold inlets to tank Rp 3/4)
Title
Water Connections Solar
Specification group

How Split System Solar Water Heaters Work

The Solahart 272RCS07X split solar water heater is designed to be installed as an electric boosted solar water heater with its booster heating unit connected to a power supply, however it may be installed with an in-series continuous flow or storage booster. If installed with an in-series booster, then the electric booster heating unit will not be connected to a power supply.

Solar Operation

The operation of the circulator is controlled by the combination of:

  • the hot sensor located at the outlet of the solar collectors. The hot sensor measures the water temperature at the outlet of the solar collectors.
  • the cold sensor located at the solar cold outlet at the base of the solar storage tank. The cold sensor measures the water temperature at the bottom of the solar storage tank.
  • the differential controller located in the solar control unit.

With open circuit split systems, the water is circulated from the tank at ground level through the solar collectors by an electric pump called a 'circulator'. As the sun heats the water in the solar collectors, the increase in temperature activates the circulator. The circulator switches on whenever the water in the solar collectors is hotter than the water in the solar storage tank. The circulator moves the hotter water from the solar collectors through the solar hot pipe to the solar storage tank and the cooler water from the solar storage tank is circulated to the solar collectors via the solar cold pipe to be heated by the sun’s energy.

This process continues whilst solar energy is available and the water in the solar storage tank requires heating. The circulator will deactivate when the water temperature in the solar storage tank is around 70°C to 75°C.

During normal operation if the amount of solar energy available reduces, such as when the sky becomes very cloudy or the sun becomes lower in the sky in the late afternoon, and the water no longer gains usable heat from the solar collectors, the circulator will deactivate. The water heater will then enter standby mode.

Over-Temperature Operation

The purpose of the Over-temperature operation is to reduce the amount of overheating or ‘stagnation’ of water in the solar collectors. When the water in the solar storage tank has reached 70°C to 75°C and the circulator has deactivated, the solar collectors will continue to gain heat while solar energy is still available.

If the water in the solar collectors stagnates and its temperature becomes very high, the circulator will activate for a short period to transfer this extra energy to the solar storage tank. The circulator will deactivate when the water temperature in the solar collectors decreases. This process will either repeat for a maximum of eight cycles or until the water temperature in the solar storage tank reaches around 75°C to 80°C or the hot sensor does not sense another increase in water temperature to a stagnation level after a cycle is completed, i.e. the solar energy available reduces.

Night Time Cooling Operation

The purpose of Night Time Cooling operation is to rid the solar storage tank of excess solar energy gained by Over-temperature operation during that day. The desired water temperature in the solar storage tank is to be between 60°C to 70°C.

If the solar control unit has entered Over-temperature operation during the day, then after the water temperature in the solar collectors reduces later in the day or early evening, the circulator will activate. Water from the solar storage tank will circulate through the solar collectors and excess heat in the water will radiate from the solar collectors reducing the temperature of the water. The water will circulate for a period of time and until the water temperature in the solar storage tank is around 60°C to 70°C. The water heater will then enter standby mode.

Freeze Protection Operation

The purpose of Freeze Protection operation is to prevent freezing of water in the solar collectors and solar pipe work in very cold conditions. The water in the solar collectors will cool during periods of no solar gain. In very cold conditions, such as overnight and very early in the morning before sunrise, the water temperature can approach freezing point.

If the hot sensor measures that the water temperature in the solar collectors is approaching freezing, the circulator will activate. Water from the solar storage tank, containing more energy than the water in the solar collectors, will circulate through the solar collectors keeping the water temperature above freezing point. The circulator will remain on for some minutes and until the hot sensor measures a water temperature at a safe level above freezing. When both of these conditions are met, the circulator will deactivate. The water heater will then enter standby mode.

This process will repeat whenever the hot sensor measures that the water temperature in the solar collectors is approaching freezing.

This model also has enhanced frost protection. The frost element located at the bottom of the solar storage tank will turn on when the circulator activates and the cold sensor measures a very low water temperature at the bottom of the tank. The purpose of the anti-freeze heating unit is to provide additional energy to the water to assist in the prevention of freezing in the solar pipe work and solar collectors. The frost element will turn off when either the water temperature has risen by a few degrees or the circulator deactivates. The water heater will then enter standby mode.

Standby Mode

The water heater will be in Standby mode whenever conditions are not favourable for solar heating in Normal operation, and Over-temperature operation and Night Time Cooling are not required or have been completed, and conditions are not cold enough for or in-between Freeze Protection operation.

Image
Solahart solar ready 270l

* The suggested price is comprised of RRP less the applicable solar incentive and excluding installation. Solar incentive value applies to 272RCS07X system in Zone 3.
^ Energy savings of up to 75% shown are based on Australian Government approved TRNSYS simulation modelling of a Solahart 272RCS07X and using a medium load in Zone 3 and apply when replacing an electric water heater. Any savings will vary depending upon your location, type of Solahart system installed, orientation and inclination of the solar collectors, type of water heater being replaced, hot water consumption and fuel tariff. Maximum financial savings off your hot water bill are achievable when replacing an electric water heater on continuous tariff.
† Solahart Warranty Details: 10/3/2 warranty; 10 year cylinder and collector supply, 3 year cylinder and collector labour, 2 year parts supply including labour; applies to a single family domestic dwelling only. Without limiting these periods, a 5-year whole-of-product warranty applies where a rebate has been received under Solar Victoria’s Solar Homes Program for installations from 1st July 2023. For further details, call 131 031.
All other applications have a 3/1/1 warranty; 3 year cylinder and collector supply, 1 year parts supply, 1 year labour.
‡ Enhanced Frost Protection – these systems have a level of enhanced recirculating freeze protection designed to guard against freeze conditions. These systems are suitable to be installed at an altitude not exceeding 600 m above sea level.
∠ Harsh water regions – the Solahart warranty may not apply if the water heater is connected to a water supply which: is scaling with a saturation index >+0.8, or; is corrosive with a saturation index <-1.0, or; has a Total Dissolved Solids content >2500 mg/L.

* The suggested price is comprised of RRP less the applicable solar incentive and excluding installation. Solar incentive value applies to 272RCS07X system in Zone 3.
^ Energy savings of up to 75% shown are based on Australian Government approved TRNSYS simulation modelling of a Solahart 272RCS07X and using a medium load in Zone 3 and apply when replacing an electric water heater. Any savings will vary depending upon your location, type of Solahart system installed, orientation and inclination of the solar collectors, type of water heater being replaced, hot water consumption and fuel tariff. Maximum financial savings off your hot water bill are achievable when replacing an electric water heater on continuous tariff.
† Solahart Warranty Details: 10/3/2 warranty; 10 year cylinder and collector supply, 3 year cylinder and collector labour, 2 year parts supply including labour; applies to a single family domestic dwelling only. Without limiting these periods, a 5-year whole-of-product warranty applies where a rebate has been received under Solar Victoria’s Solar Homes Program for installations from 1st July 2023. For further details, call 131 031.
All other applications have a 3/1/1 warranty; 3 year cylinder and collector supply, 1 year parts supply, 1 year labour.
‡ Enhanced Frost Protection – these systems have a level of enhanced recirculating freeze protection designed to guard against freeze conditions. These systems are suitable to be installed at an altitude not exceeding 600 m above sea level.
∠ Harsh water regions – the Solahart warranty may not apply if the water heater is connected to a water supply which: is scaling with a saturation index >+0.8, or; is corrosive with a saturation index <-1.0, or; has a Total Dissolved Solids content >2500 mg/L.